Oportunidad de inversión en Can Picafort con vistas espectaculares

1.554 m2
N/A
N/A
N/A
Norte
REF. 9305
Consultar precio

Oportunidad de inversión en Can Picafort con vistas espectaculares al mar. Se trata de un antiguo hotel con licencia para reformar en un local en planta baja y primera planta y 2 apartamentos dúplex

Enviar a un amigo

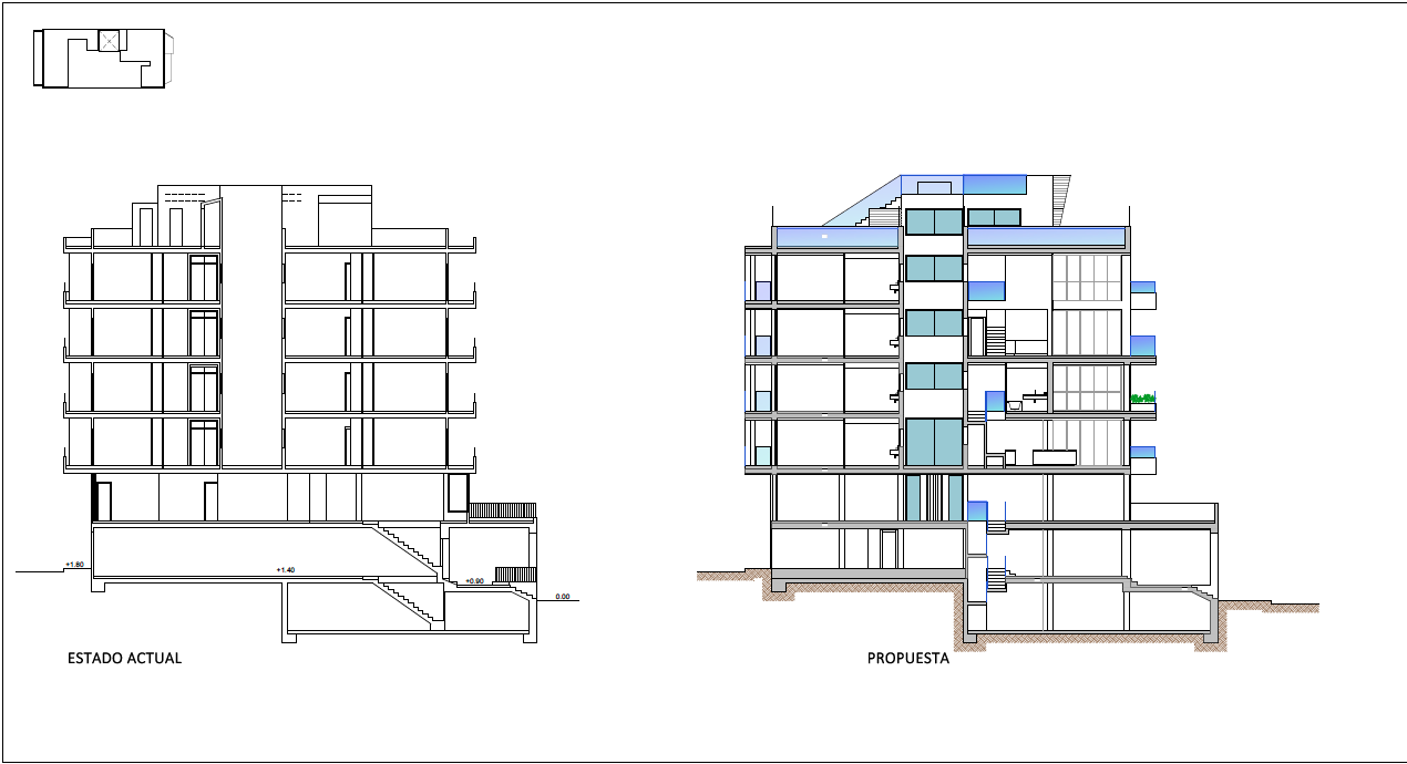
Una oportunidad de inversión para realizar un proyecto único en la zona con local comercial y 2 viviendas de lujo con vistas espectaculares a la Bahía de Alcudia, situado en segunda línea de mar, junto al club náutico de Cala Rajada y a pocos metros de las preciosas playas de la Bahía de Alcudia. El proyecto puede ser interesante tanto para un promotor como para un cliente que quiera quedarse con una vivienda y vender o alquilar el resto.  Se vende el edificio con licencia para reformar el edificio y reconvertirlo en un local comercial en planta baja y primera planta con terraza. En la segunda y tercera planta se encuentra una de las viviendas que cuenta con un espectacular salón a doble altura, con terraza, cocina abierta con isla, un pequeño patio interior, 2 dormitorios, 2 baños y coladuría. En la planta superior hay 3 dormitorios con baños en suite, el dormitorio principal con vistas al mar y con un gran ventanal que da a la doble altura. Además cuenta con una parte de la terraza situada en la azotea con piscina privada.  En la planta 4 y 5 está el ático duplex, con un espectacular salón a doble altura, con terraza, cocina abierta con isla, un pequeño patio interior, 2 dormitorios, 2 baños y coladuría. En la planta superior hay 3 dormitorios con baños en suite, el dormitorio principal con vistas al mar y con un gran ventanal que da a la doble altura. Además cuenta con una parte de la terraza situada en la azotea con piscina privada.    Todas las viviendas tienen acceso mediante ascensor y escalera interna. Además cuentan con 4 plazas de aparcamiento.  MallorcaSite, su agencia inmobiliaria en Mallorca, le recomienda esta propiedad por su ubicación, por ser una oportunidad de inversión, por las vistas, por el diseño del proyecto. 

Extras

Certificación energética

En trámite



Contactar



Kristin Hillmann Kristin Hillmann >Consultora en Ventas